alfa V35

ALFA V35

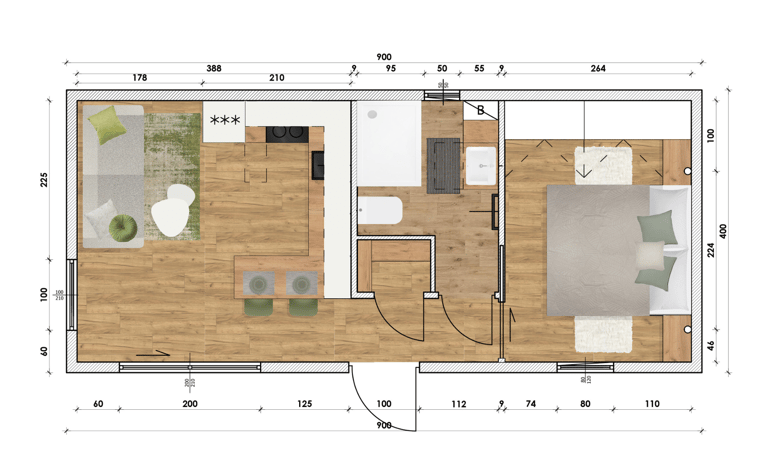
Alapterület: 35 m2

Dimenziók: 4m x 8,7m x 2,45m

vázszerkezet: acél

szigetelés: 15-30cm ásványgyapot

21.390.000 FT+ÁFA-tól

  • Kulcsrakész állapot

  • Külső, belső burkolatokkal

  • Teljes értékű fürdőszobával, bojlerrel

  • Lámpákkal, kapcsolókkal, konnektorokkal szerelve

Modulházaink kerekek nélkül is kérhetők, így fix alapra is helyezhetők.

Egyedi igények esetén további kiegészítőkkel

Az ár nem tartalmazza: tervezést, szállítást, alapozást, daruzási szolgáltatást

Modulházaink méretei úgy lettek megtervezve, hogy előre legyártott állapotban az EU egész területén szállíthatók legyenek. A modulok letelepítése csak daruval kivitelezhető. Az épület méretéhez és súlyához megfelelő alapra helyezhető, ezzel kapcsolatos opciókról kollégáink tájékoztatni fogják. A mindössze néhány napot igénybe vevő telepítés és a közüzemi szolgáltatások bekötése után a modulházak beköltözhetők, használhatók.

Modulházaink tökéletes megoldást kínálnak nyaraló és családi ház célokra egyaránt.

Miért válassz modulházat?

  • kiváló ár;

  • a ház gyártása 8-14 hetet vesz igénybe;

  •  Modulházaink életvitelszerű használatra is teljes mértékben alkalmasak

  • az otthoni karbantartás költségek csökkenthetők az energiatakarékos technológiának köszönhetően;

  • a modulok költözés esetén más helyszínre szállíthatók

  • Az acél vázszerkezetes modulházak kiváló választást jelentenek azok számára, akik gyorsan és hatékonyan szeretnének otthonhoz jutni. Acél vázszerkezetüknek köszönhetően rendkívül stabilak és tartósak. A legjobb építő- és befejező anyagokat használva, garantáljuk az épület hosszú élettartamát és ellenállását a külső tényezőkkel szemben. Ezek a házak nemcsak esztétikusak, hanem praktikusak is, hiszen a modern építési technológiák alkalmazásával gyorsan és pontosan építhetők fel.

  • A megfelelő hőszigetelés kiemelten fontos szempont a modulházaknál. A vastag PUR hab rétegek (20 cm a tetőben, 30 cm a padlóban, 15 cm a falakban), valamint a háromrétegű üvegezésű ablakok használata biztosítja a kiváló hőszigetelést és a kellemes belső klímát az év minden szakában. Ezért ügyfeleink egész évben kényelmesen lakhatnak ezekben a házakban, függetlenül a külső időjárási viszonyoktól. A kiváló hőszigetelés nemcsak a komfortérzetet növeli, hanem a fűtési költségeket is jelentősen csökkenti.

  • Az igényeknek megfelelően a házakat felszerelhetjük hőszivattyúval és napelemekkel is, amelyek rendkívül alacsony üzemeltetési költségeket biztosítanak, és még inkább környezetbaráttá teszik az épületet. Ezek az innovatív technológiák nemcsak a fenntarthatóságot szolgálják, hanem hosszú távon jelentős megtakarításokat is eredményeznek a tulajdonosok számára.

Technológiáról

A modul házak vásárlása megbízható és modern megoldást kínál az otthonteremtésre. Ezek az épületek egyre népszerűbbé válnak azok körében, akik gyors és hatékony építési folyamatot keresnek. A modul házak könnyen testreszabhatóak, lehetővé téve számodra, hogy a saját igényeid és stílusod szerint alakítsd ki az ideális otthont.

Egy modul ház megvásárlása sokkal gyorsabb folyamat, mint egy hagyományos tégla építésű házé, így gyorsabban élvezheted az új otthonod kényelmét. Emellett ezek az épületek általában költséghatékonyabbak is, mivel kevesebb anyagot és munkaerőt igényelnek a felépítésükhöz.

Ne félj az új technológiától! A modul házak kiváló minőségű anyagokból készülnek, és szigorú minőségellenőrzéseken esnek át az építés folyamata során. Ezek az épületek tartósak és energiatakarékosak, így hosszú távon is kényelmes és fenntartható otthont biztosítanak számodra és családod számára.

Válassz te is egy modern, praktikus modul házat, és élvezd az otthonteremtés egyszerűségét és komfortját!