alfa t35






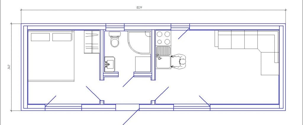
ALFA T35
Alapterület: 35 m2
Dimenziók: 3,36m x 10,38m x 3,3m
vázszerkezet: FA
szigetelés: 15-20cm ásványgyapot
13.370.000 Ft+ÁFA-tól












Kulcsrakész állapot
Külső, belső burkolatokkal
Teljes értékű fürdőszobával, bojlerrel
Lámpákkal, kapcsolókkal, konnektorokkal szerelve
Egyedi igények esetén további kiegészítőkkel
Az ár nem tartalmazza: tervezést, szállítást, alapozást, daruzási szolgáltatást
Modulházaink méretei úgy lettek megtervezve, hogy előre legyártott állapotban az EU egész területén szállíthatók legyenek. A modulok letelepítése csak daruval kivitelezhető. Az épület méretéhez és súlyához megfelelő alapra helyezhető, ezzel kapcsolatos opciókról kollégáink tájékoztatni fogják. A mindössze néhány napot igénybe vevő telepítés és a közüzemi szolgáltatások bekötése után a modulházak beköltözhetők, használhatók.
Modulházaink tökéletes megoldást kínálnak nyaraló és családi ház célokra egyaránt.
Miért válassz modulházat?
kiváló ár;
a ház gyártása 6-8 hetet vesz igénybe;
Modulházaink életvitelszerű használatra is teljes mértékben alkalmasak
az otthoni karbantartás költségek csökkenthetők az energiatakarékos technológiának köszönhetően;
a modulok költözés esetén más helyszínre szállíthatók
Energiahatékony favázas házépítési technológia, amelyet számos ország sokéves tapasztalata bizonyít, köztük: USA, Kanada, Finnország, Japán, Norvégia, Dánia, amelyek több mint 300 éve építenek ilyen otthonokat.
Az előregyártott moduláris faházak ökológiai jellege az ökológiailag tiszta anyagok használatán alapul: tűlevelű fafajták, ásványi szigetelés, amelyek megfelelnek az európai szabványoknak.
A ház magas energiahatékonysága a bazaltgyapot szigetelésnek köszönhető, melynek főbb jellemzői az alacsony hővezető képesség, a vízgőz áteresztőképesség, a nem gyúlékony képesség, hatékony hő- és zajszigetelés, terhelésállóság, tömörség stb. 150 mm ásványi anyag a gyapjú lehetővé teszi a fűtési költségek akár 30%-os csökkentését.
Technológiáról
A modul házak vásárlása megbízható és modern megoldást kínál az otthonteremtésre. Ezek az épületek egyre népszerűbbé válnak azok körében, akik gyors és hatékony építési folyamatot keresnek. A modul házak könnyen testreszabhatóak, lehetővé téve számodra, hogy a saját igényeid és stílusod szerint alakítsd ki az ideális otthont.
Egy modul ház megvásárlása sokkal gyorsabb folyamat, mint egy hagyományos tégla építésű házé, így gyorsabban élvezheted az új otthonod kényelmét. Emellett ezek az épületek általában költséghatékonyabbak is, mivel kevesebb anyagot és munkaerőt igényelnek a felépítésükhöz.
Ne félj az új technológiától! A modul házak kiváló minőségű anyagokból készülnek, és szigorú minőségellenőrzéseken esnek át az építés folyamata során. Ezek az épületek tartósak és energiatakarékosak, így hosszú távon is kényelmes és fenntartható otthont biztosítanak számodra és családod számára.
Válassz te is egy modern és praktikus modul házat, és élvezd az otthonteremtés egyszerűségét és komfortját!

